Quadrilocale in vendita

Cercenasco, Via regina margherita
€ 90.000
4 locali 4 locali
110 Mq 110 Mq
1 bagno 1 bagno

Quadrilocale in vendita

Cercenasco, Via regina margherita

Descrizione annuncio

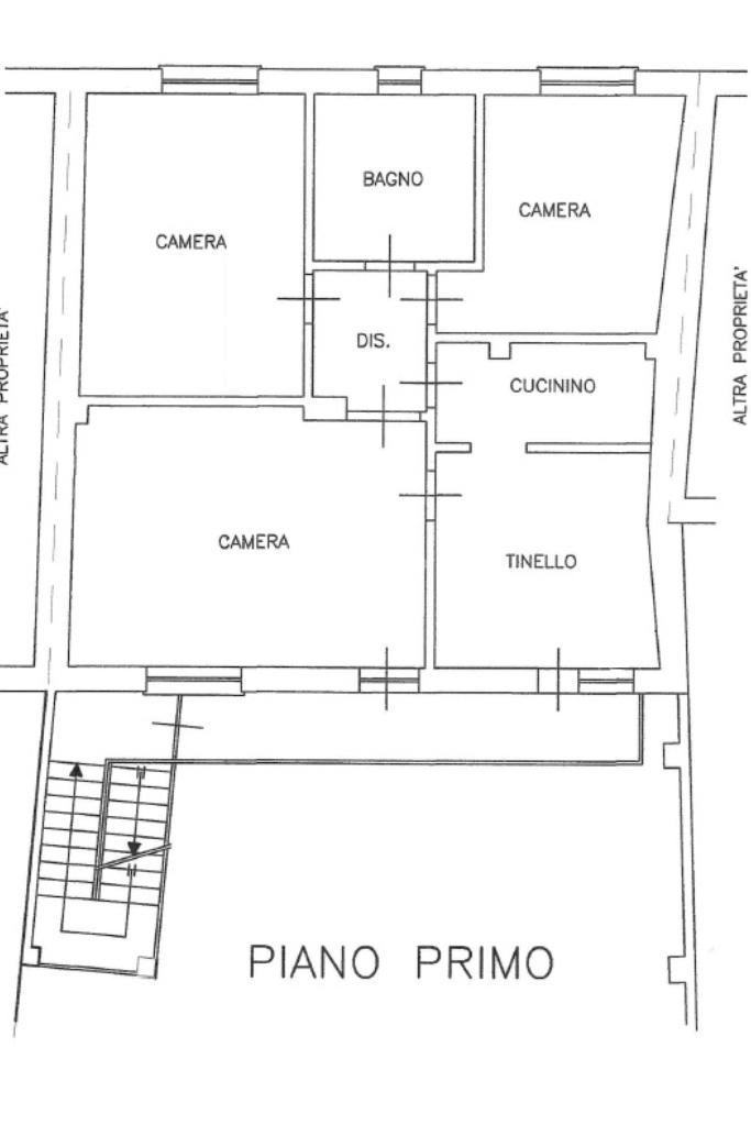
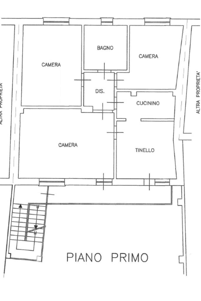
In centro paese alloggio indipendente in bifamiliare situato al primo piano composto da una cucina grande, soggiorno, disimpegno, 2 camere e bagno. Al piano terra troviamo box e cantina attualmente ambiente unico. Nel cortile un posto auto scoperto, sotto la tettoia magazzino e cantina con soppalco al piano primo con adiacente zona di giardino privato.

Comodo a tutti i servizi e senza spese condominiali.

Per avere informazioni o per visionare l'immobile contattaci anche tramite whatsapp al numero 393.4501264 o al numero 011-9801758.

Se devi ancora vendere casa ti offriamo la nostra consulenza e valutazione dell'immobile gratuita.

Consulenza mutuo gratuita

Grazie agli accordi e convenzioni con i maggiori istituti di credito, riusciamo a finanziare anche l'intero importo dell'acquisto comprese le spese accessorie.

Mostra tutto

Nelle vicinanze

Trasporto pubblico Trasporto pubblico
Cercenasco, Via XX Settembre/Municipio
Cercenasco, Via XX Settembre/Municipio
220 m
Cercenasco, Via Regina Margherita
Cercenasco, Via Regina Margherita
230 m
Scuole Scuole
Scuola elementare
260 m
Scuole
1,5 Km
Farmacia Farmacia
Farmacia
260 m
Farmacia Cerutti
1,9 Km
Farmacia Gallo
1,9 Km
Negozi Negozi
Brunella
290 m
Il Forno
1,9 Km
Panetteria Pasticceria Peretti
2,0 Km
Bar Bar
Bar Gelateria dell'Angolo
250 m
Bar Lo Spuntino
1,7 Km
Bar Roma
1,9 Km
Bar
2,1 Km
Ristoranti Ristoranti
Ristorante Cavallo Rosso
240 m
Ristorante Centro
300 m
Ristoranti
1,9 Km
SottoSopra
2,0 Km
Mostra tutto

Caratteristiche

Rif.:
61173915
Piano:
1 di 2 (Piano basso)
Box:
2
Posti auto:
1
Balconi:
1
Camere da letto:
2
Mostra tutto
Prezzo Prezzo
€ 90.000
Rata mutuo Rata mutuo
€ 424 / mese
Spese annue Spese annue
€ 0
Proponi il tuo prezzoProponi il tuo prezzo

Classe Energetica

F
F
F
F
F
F
F
F
F
EP globale non rinnovabile:
221.83 kW h/m² anno
EP globale rinnovabile:
0.85 kW h/m² anno
EP invernale del fabbricato:
EP estiva del fabbricato:
Anno di costruzione:
1985
Riscaldamento:
Autonomo
Tipo impianto:
A radiatori
Tipo alimentazione:
Altro

Ti interessa visionare l'immobile?

Fissa un appuntamento  Fissa un appuntamento

Richiedi informazioni

Clicca su Leggi per aprire l'informativa
* Questi campi sono obbligatori

Calcola il tuo mutuo

Semplice e senza impegno
Anticipo

( % )
Mutuo

( % )

pochi semplici passi

inserisci i tuoi dati
Questionario completato
Grazie per aver richiesto un appuntamento senza impegno con un nostro Consulente del Credito e Assicurativo.

Hai inserito correttamente tutti i dati necessari e a breve riceverai una e-mail con un link da convalidare per inviare i tuoi dati.
Affiliato
Studio Vigone Sas
Via Oggero Bessone, 4 10067 Vigone (TO)

Il nostro staff


  • Manuela Rinaldi
    Affiliata

  • Diego Asti
    Responsabile
Via Oggero Bessone, 4 10067 Vigone (TO)
Zona: Vigone-Scalenghe
Mostra su mappa
Orari: dal lunedi' al venerdi 9.00-12.30 14.30-19.30 sabato chiusura 19.00
Affiliato
Studio Vigone Sas
Via Oggero Bessone, 4 10067 Vigone (TO)

2026 Tecnocasa Franchising S.p.A. - P. IVA 08365160152 - Via Monte Bianco 60/A 20089 Rozzano (MI). Ogni agenzia ha un proprio titolare ed è autonoma. Privacy policy | Policy utilizzo | Cookie policy